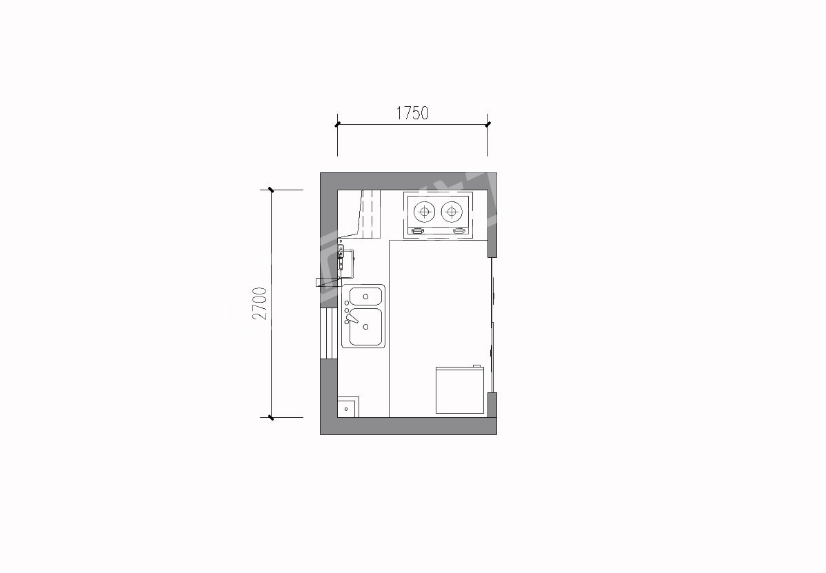
功能模块-厨房 MK-K(1.6x2.9)-001 MK-K(1.6x3.1)-001 MK-K(1.6x3.3)-001 MK-K(1.7x3.3)-001 MK-K(1.8x2.7)-001 MK-K(1.8x2.8)-001 MK-K(1.8x2.8)-002 MK-K(1.8x3.6)-001 MK-K(1.9x2.9)-001 MK-K(1.9x3.3)-001 MK-K(1.9x3.6)-001 MK-K(1.60x3.25)-001 MK-K(1.75x2.70)-001 MK-K(1.975x2.550)-001 MK-K(2.0x2.9)-001 MK-K(2.0x3.1)-001 MK-K(2.2x3.9)-001 MK-K(2.3x2.8)-001 MK-K(2.05x3.10)-001 MK-K(2.15x2.65)-001 MK-K(2.15x2.90)-010 MK-K(2.25x2.50)-001 MK-K(2.35x2.70)-001 MK-K(2.55x6.00)-001